
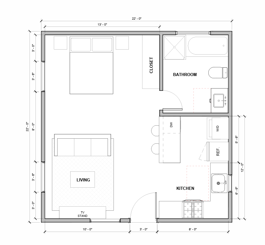
Introducing our 300 SQFT ADU plan, a thoughtfully designed studio that maximizes space without compromising on comfort. This Accessory Dwelling Unit (ADU) features an open-concept layout, perfect for singles or couples seeking a cozy and efficient living space.
✅ Architectural & Engineering Plans
Complete floor plans, elevations, roof, and foundation layouts. Structural plans with load calculations — stamped by a licensed CA engineer. Electrical, plumbing, and mechanical layouts ready for review
✅ Energy & Compliance Reports
Title 24 energy calculations included. Plans meet State Building Code and local ADU standards. Site plan template with setbacks and utility connection points
✅ Permit-Ready Package
Fully organized PDF set ready for city submission. All city corrections and revisions included — no extra cost. Fast-track approval to start building sooner.
Introducing our 300 SQFT ADU plan, a meticulously designed studio that epitomizes space efficiency and modern living. This compact yet fully equipped unit is ideal for singles, couples, or anyone in need of an additional living space on their property. The open-concept layout seamlessly integrates living, dining, and sleeping areas, creating a versatile and inviting environment.
Our primary focus is to make the process of finding and purchasing house plans more convenient. We offer a wide range of designs, including single-family homes, multi-family units, garages, pool houses, sheds, and backyard offices. Our extensive collection features various architectural styles, sizes, and features, all customizable to meet your specific needs and preferences.
We collaborate with hundreds of residential building designers and architects to continually expand and diversify our portfolio. This commitment ensures that you have access to the best and most varied house plans available.
We understand that each project is unique. Therefore, we offer modification services for any house plan on our site. Whether you need adjustments to the layout, size, or features, our team is ready to assist in creating the perfect plan for you.
An ADU, or Accessory Dwelling Unit, is also known as a tiny home, granny flat, in-law unit, or garage apartment. We help homeowners by providing expert guidance and tools to navigate the process of building an ADU, from zoning and permitting, to design and size considerations, to cost estimation, and through the construction process itself.
Our services include assistance with zoning and permitting. We help you identify your property's specific zoning requirements and the necessary permits for ADU construction, ensuring your project stays compliant with local regulations.
We offer information and resources on the construction process, timelines, and best practices for building an ADU. Additionally, we have a network of trusted builders you can partner with to ensure a seamless, efficient, and high-quality build for your ADU.
With the Gather Feasibility Report, you can confidently embark on your ADU journey, knowing you've got a solid foundation and a clear roadmap to success.
We
1) Thoroughly analyze your property records for a tailored assessment,
2) Work with city and county authorities on your behalf for a hassle-free experience,
3) Secure a preliminary "pre-approval" from city/county for your peace of mind,
4) Deliver a comprehensive report document detailing your property's ADU possibilities.
No, it isn't required. GatherADU offers support at every step of the ADU process, allowing you to proceed without making an immediate full commitment. You have the flexibility to progress at your own pace and opt for pay-as-you-go.
GatherADU provides ADU design and planning services nationwide with focus on California, Washington, Oregon, and Georgia.