With Gather, designing your ideal ADU is a breeze. We manage all the planning and permitting paperwork, ensuring you enjoy a seamless experience and complete peace of mind.
Though backyard homes are typically the most familiar, ADU structures come in various types. The illustration below shows the four primary types of ADU structures. 
ADUs can be built using a variety of construction methods, including pre-fabricated, modular, shed, container, panelized (in pieces), and stick-built. Each construction method has its own advantages and disadvantages in terms of cost, time, and customization.












In a proactive effort to combat the ongoing housing crisis, the State of California has adopted specific regulations to promote the construction and utilization of Accessory Dwelling Units (ADUs). Here's an expanded and comprehensive breakdown of the key points:
1. Purpose and Prominence: California recognizes the potential of ADUs in providing affordable housing options. Given the state's dense urban centers and escalating property prices, ADUs present a viable solution to address the growing demand for residential spaces.
2. Eligibility for Establishment: Both single-family homes and multifamily properties can host an ADU.
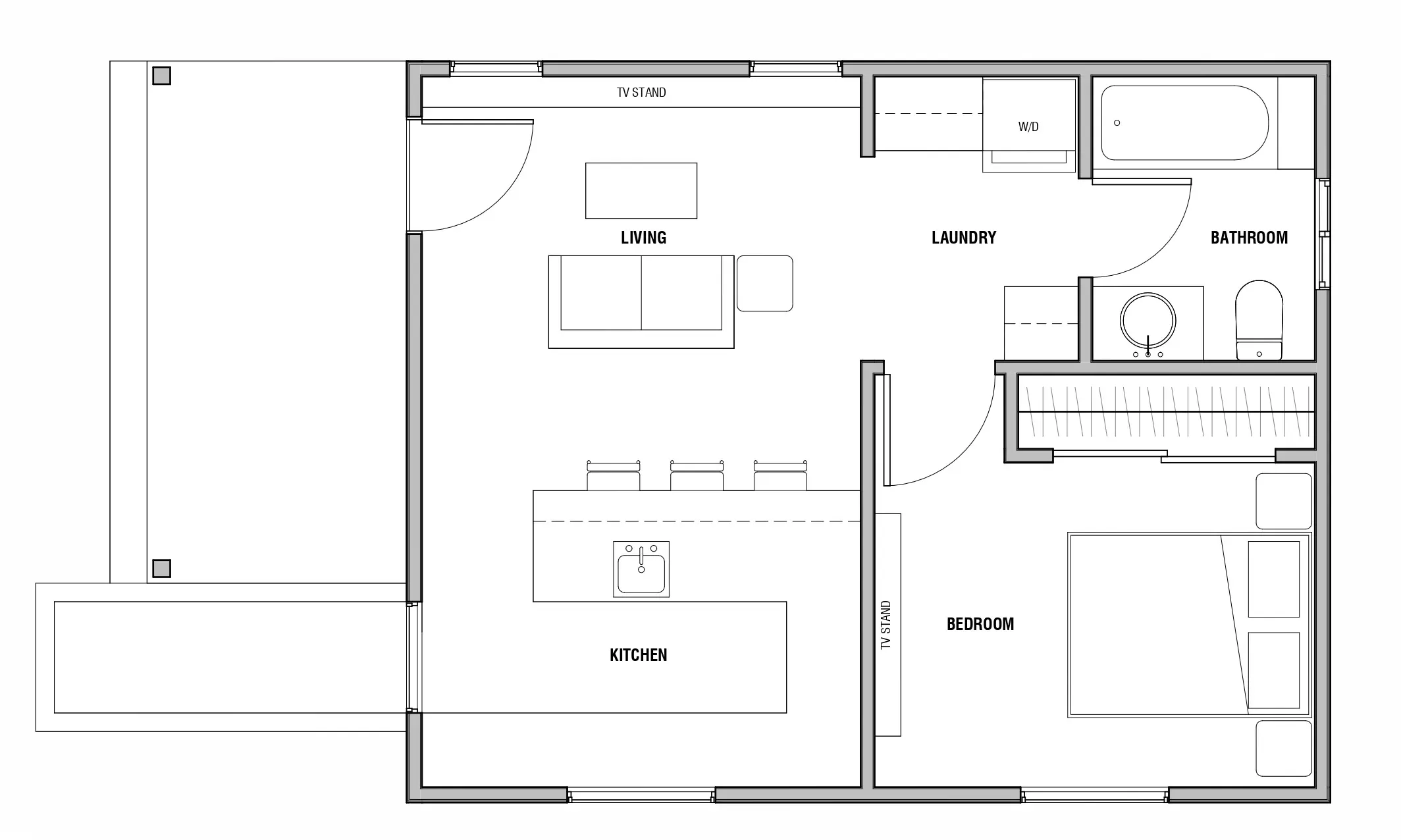
3. Size Considerations: For detached ADUs, the maximum allowable size is up to 1,200 square feet.
The actual size of an ADU might vary depending on specific factors such as the total lot area and the size of the primary dwelling on the property.
4. Parking Norms: The state mandates limited parking requirements for ADUs.
If an ADU is situated near public transit, these parking stipulations may be even less stringent, facilitating easy construction and usage.
5. Owner-Occupancy: Historically, some jurisdictions required the property owner to live in either the primary home or the ADU. However, for ADUs permitted between 2020 and 2025, the state does not enforce such owner-occupancy requirements, allowing for greater flexibility in usage.
6. Setback Rules: For detached ADUs, there's a minimum setback requirement of 4 feet from both the rear and side yard boundaries.
7. Approval Process: Cities across the state are obligated to approve compliant ADU applications within a span of 60 days. This streamlined process ensures quick turnarounds and encourages homeowners to consider ADU development.
8. Fee Structure: To further incentivize ADU establishment, the state has reduced or completely waived fees for ADUs that are less than 750 square feet. This can translate to significant savings for property owners.
9. Rental Conditions: If an ADU meets the stipulated requirements laid out by the city, it must be available for rental. This regulation ensures that ADUs actively contribute to alleviating housing shortages.
10. Local Jurisdictional Variances: While the above guidelines provide a general framework, it's crucial to note that local jurisdictions might have their unique sets of regulations and requirements. Property owners should consult their respective city or county planning departments to get precise and localized information.
In conclusion, as California grapples with housing challenges, ADUs offer a promising avenue to augment living spaces without the need for expansive new developments. These guidelines, though comprehensive, serve as a starting point, and it's always recommended to liaise with local experts for tailored advice.
State laws (RCW 36.70A.680 and 36.70A.681) mandate that all local governments under the Growth Management Act (GMA), irrespective of size and including both cities and counties within unincorporated urban growth areas, update their regulations to align with specific criteria within six months following their scheduled update. The key directives include:
These regulations aim to encourage the development of ADUs, offering more housing options within urban growth areas.
Since July 1, 2018, most Oregon cities and counties allow homeowners to build Accessory Dwelling Units (ADUs) on residential properties. However, local rules on ADU size, placement, and design must be followed. Each area has its own rules for:
Local governments also have different processes for giving permits and may charge fees for building an ADU. These fees, including impact fees or system development charges, can vary a lot. Some places might not charge these fees at all, while others could charge $15,000 or more for each ADU.
In Oregon, the rules for creating Accessory Dwelling Units (ADUs) set standards to boost housing while keeping communities looking good. Understanding Oregon's ADU laws is crucial for compliance and making the most of ADU benefits. Cities must have over 2,500 people, and counties over 15,000, to fall under the ADU mandate. This supports urban housing needs. Urban Growth Boundaries (UGBs) define where ADUs can be built, promoting smart growth and land use without harming Oregon's landscapes.
Oregon's ADU laws aim to increase affordable housing. They require local governments to process ADU applications efficiently, especially in urban areas. State laws stop local rules from demanding owners live in ADUs or provide extra parking, except for vacation rentals. Setback requirements ensure ADUs are well-placed, respecting privacy and the environment. Oregon encourages updating local ADU rules to match state standards, making it easier to build ADUs and help with housing shortages.
Design and siting rules for Oregon ADUs ensure they fit well with urban settings and offer design flexibility. Oregon prefers less restrictive rules for ADUs compared to other buildings, aiming to increase housing options responsibly. The state simplifies ADU regulations, replacing complex zoning laws with clearer, state-wide standards. This helps reduce red tape and encourage ADU construction.
Oregon's approach to ADUs, including size restrictions and utility connection guidelines, is designed to integrate ADUs smoothly into neighborhoods, addressing housing needs. ADUs can't be too large compared to the main house, and shared utility connections are encouraged to keep costs down. This effort shows Oregon's commitment to innovative, affordable housing solutions.
With Gather, you're not just building an ADU — you're cultivating peace of mind. Our end-to-end guidance and ongoing support mean every decision is informed, every step is intentional, and every outcome exceeds expectations. With us, your dream ADU is within reach. Here is what we do:
With Gather, designing your ideal ADU is a breeze. We manage all the planning and permitting paperwork, ensuring you enjoy a seamless experience and complete peace of mind.
%20(1).png)

La Cañada Flintridge is located in Southern California and is known for its vibrant community and scenic beauty. Residents enjoy a mix of urban conveniences and natural attractions.
With Gather, designing your ideal ADU is a breeze. We manage all the planning and permitting paperwork, ensuring you enjoy a seamless experience and complete peace of mind.
34.2068
-118.2
An ADU, or Accessory Dwelling Unit, is also known as a tiny home, granny flat, in-law unit, or garage apartment. We help homeowners by providing expert guidance and tools to navigate the process of building an ADU, from zoning and permitting, to design and size considerations, to cost estimation, and through the construction process itself.
Our services include assistance with zoning and permitting. We help you identify your property's specific zoning requirements and the necessary permits for ADU construction, ensuring your project stays compliant with local regulations.
We offer information and resources on the construction process, timelines, and best practices for building an ADU. Additionally, we have a network of trusted builders you can partner with to ensure a seamless, efficient, and high-quality build for your ADU.
With the Gather Feasibility Report, you can confidently embark on your ADU journey, knowing you've got a solid foundation and a clear roadmap to success.
We
     
1) Thoroughly analyze your property records for a tailored assessment,
     
2) Work with city and county authorities on your behalf for a hassle-free experience,        
3) Secure a preliminary "pre-approval" from city/county for your peace of mind,         
4) Deliver a comprehensive report document detailing your property's ADU possibilities.            
No, it isn't required. GatherADU offers support at every step of the ADU process, allowing you to proceed without making an immediate full commitment. You have the flexibility to progress at your own pace and opt for pay-as-you-go.
GatherADU provides ADU design and planning services nationwide with focus on California, Washington, Oregon, and Georgia.